Appartement 107m² – ANGERS
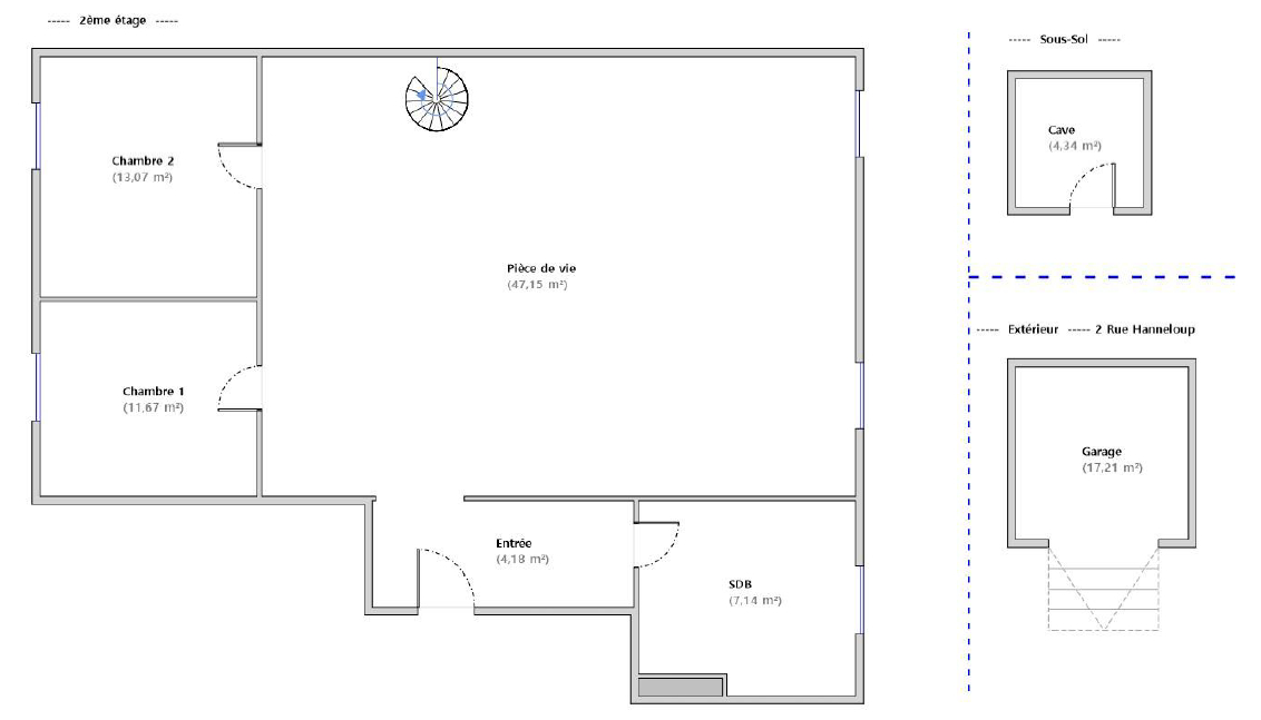
https://alain-rousseau.com/bien/appartement-107m%C2%B2-angers/Seulement à l'agence Alain Rousseau, garage rue Hanneloup et appartement duplex situé au 2e étage avec ascenseur d'une petite copropriété idéalement placée rue Saint Blaise. L'immeuble en pierre de taille élevé en 1870 dispose d'un élégant porche qui permet l'accès à l'ascenseur après la montée de 8 marches. Les espaces privatifs présentent un cachet qui ne demandera qu'à être rafraichit: trois belles chambres, une salle de bains, une salle de douche et un grand salon séjour de 47m² environ et son coin cuisine. Cet appartement et ses annexes conviendront aussi bien à un projet d'habitation qu'à un projet professionnel (professions libérales admises) Une cave au sous-sol de la copropriété complète le bien. (5.48 % honoraires TTC à la charge de l'acquéreur.) Copropriété de 42 lots - dont 20 lots habitation. (Pas de procédure en cours). Charges annuelles : 3898.8 euros.












