Maison 149.31m² – LES PONTS DE CE
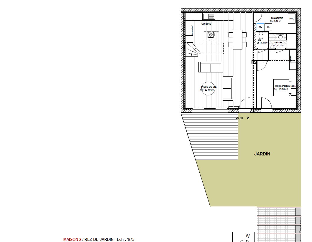
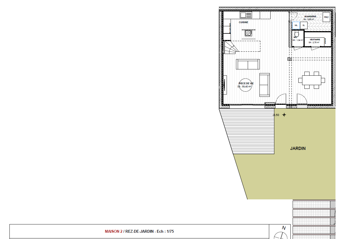
https://alain-rousseau.com/bien/maison-149-31m%C2%B2-les-ponts-de-ce/Maison mitoyenne de 149m² sur trois niveaux qui se compose d' une grande pièce de vie de 45 m² comprenant l'espace cuisine ,une buanderie ,W.C. indépendant, ainsi qu'une suite parentale avec salle de douche. Au 1er étage, avec aussi un accès rue par un patio , le palier dessert trois chambres, une salle de bains avec douche et un W.C. indépendant. Au dernier étage, 2 autres chambres et une salle de douche avec W.C. Un jardin orienté Sud-Est et 2 places de parking complètent le bien. Caractéristiques et options: La maison est vendue hors sols, faïences, cuisine, meubles vasques, robinetteries et peintures, afin de vous permettre de personnaliser les finitions selon vos goûts. Possibilité également de livraison clé en main sur demande. Différents projets envisageables: Maison familiale sur trois niveaux, Division avec profession libérale au rez-de-chaussée, Division avec création de logements locatifs. ref 3020PM (5.47 % honoraires TTC à la charge de l'acquéreur.)

